Close
TOP
家づくりについて
初めての方へ
標準設備・仕様について
アフターメンテナンス
物件一覧
建築条件付き売り土地
分譲住宅
高知市
南国市
リノベ物件
四万十市
実績紹介
実績紹介
お客様の声
はりまや住宅について
はりまや住宅の強み
会社概要
スタッフ紹介
よくある質問
注文住宅
お問い合わせ
088-873-5252
新着情報・お知らせ・コラム
News
TOP
新着情報・お知らせ・コラム
四万十市中村東町の物件資料を追加いたしました❗
四万十市中村東町の物件資料を追加いたしました❗
News
詳細はこちら✨
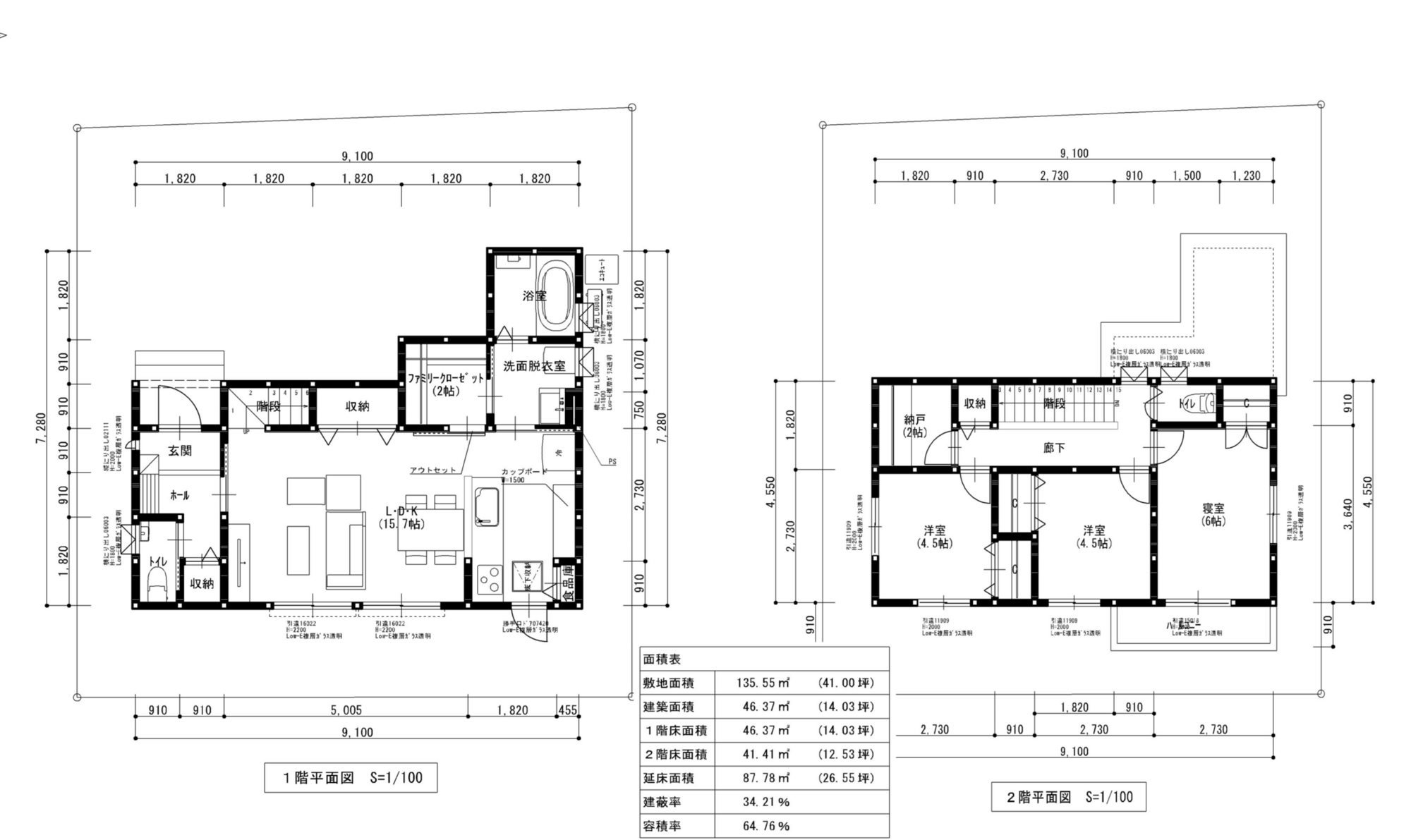
四万十市中村東町3丁目 新築住宅 子育てエコホーム支援事業対象(補助金80万円)※対象条件あり
11/1(水)建売物件、四万十市具同田黒 上棟いたしました🔨
一覧へ戻る
初のリノベ物件❗朝倉東町&瀬戸西町、物件資料を2件追加しました❗
088-873-5252
LINE
メール
Fudousan Plugin Ver.6.2.0