物件情報
Property
- TOP
- 物件情報
- 建築条件付き売り土地(セミオーダースタイル可能)
- 高知市鴨部1号地 売り土地(建築条件付き)
高知市鴨部1号地 売り土地(建築条件付き)
Property
コンセプト
CONCEPT
高知市鴨部。
日々の暮らしが整うこの街で、家族の未来に“ゆとり”という贈り物を届ける場所。
この土地の魅力は、まず何よりも立地の良さ。
買い物、通学、通院――
生活の中心が、無理なく手の届く距離に揃い、
忙しい毎日をそっと支えてくれる環境がここにはあります。
そして、もうひとつの大きな価値。
それは、**約40坪(132.15㎡)**という、いつもより少し大きめの敷地。
この“少しの違い”が、暮らしの景色を大きく変えていきます。
駐車スペース、庭の余白、建物の配置――
日常に「窮屈さ」を残さず、家族の時間に伸びやかさを与えてくれる。
建物プランは、暮らしの快適さを静かに底上げする設計。
玄関には**シューズクローク(SC)**を備え、
靴だけでなく、ベビーカー、外遊び道具、雨具、季節用品まで。
“しまう場所がある”という当たり前が、
家の中の美しさと心の余裕を守ってくれます。
LDKは約15.7帖。
家族が自然と集まり、会話が生まれ、
毎日の食卓が、何気ない幸せの舞台になっていく。
キッチン横にはパントリーもあり、
忙しい日々の「片付けやすさ」が、暮らしの質を変えていきます。
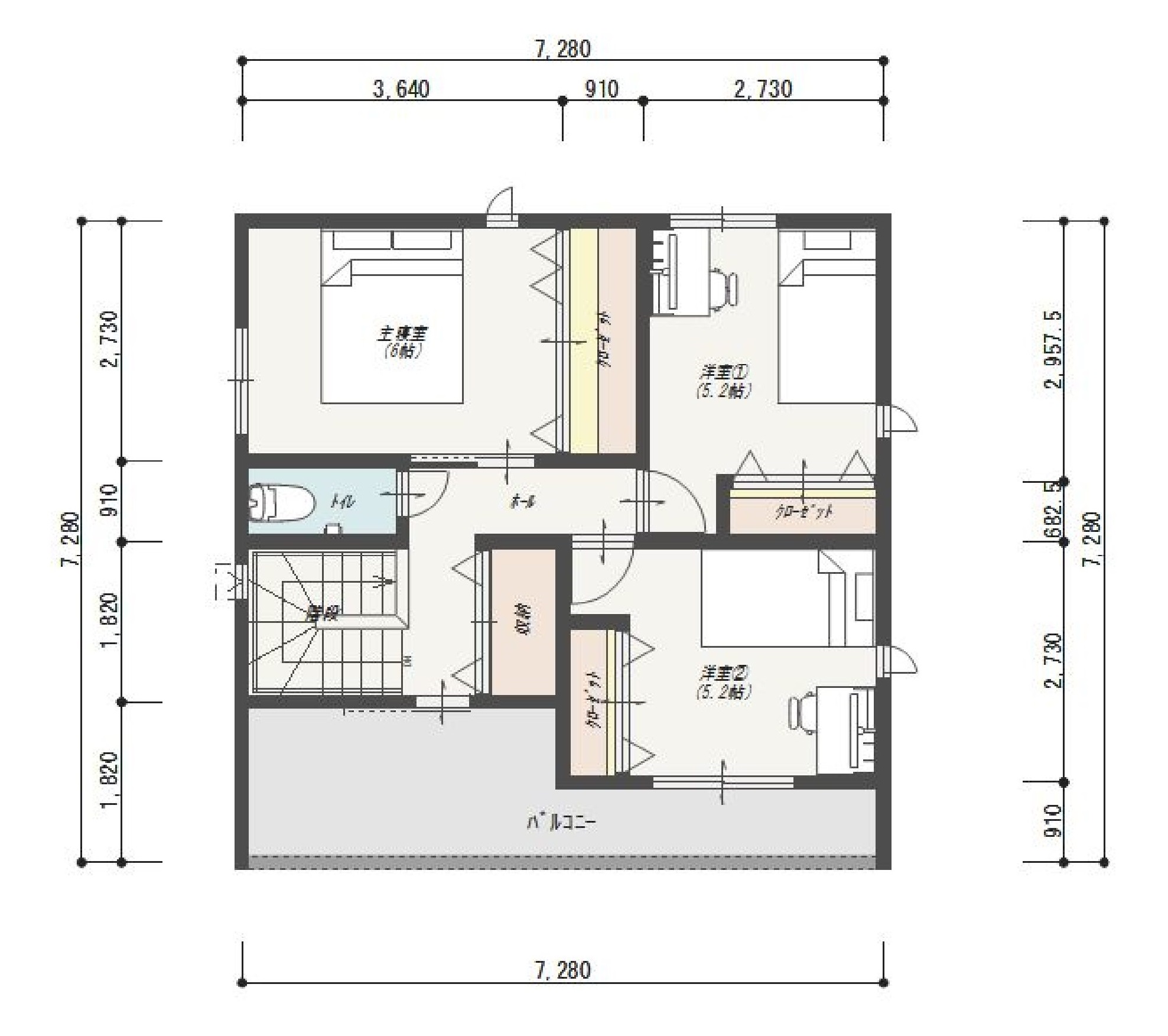
2階には、主寝室と洋室2部屋。
それぞれの成長と時間を尊重しながら、
家族としてのつながりも大切にできる距離感。
そしてバルコニー。
洗濯物が気持ちよく乾く、ただそれだけで、
暮らしは少し明るく、少し軽やかになる。
ここは、便利さだけの場所ではありません。
広さだけの土地でもありません。
立地と敷地、そして建物プランの“整い方”が、
家族の毎日を、静かに確かなものへ導いてくれる。
住まいとは、家族の物語を守る器。
この場所で始まる暮らしは、
ゆとりと安心に包まれながら、
未来へとまっすぐ続いていきます。

ローンシミュレーション
SIMULATION
⼟地・建物総額
3,710万円円(税込)
月々返済例
84,882円(税込)
※四国銀行住宅ローンシミュレーション 借入額3,880万円・返済期間40年・変動金利専用型・金利0.475%の場合 このシミュレーション結果はあくまで概算です。 詳しくは営業担当までご相談ください。
物件基本情報
SPEC
- 敷地面積
- 132.15㎡(39.97坪)
- 建物施工面積
- 92.75㎡(28.06坪)
- 1F
- 49.69㎡(15.03坪)
- 2F
- 43.06㎡(13.03坪)
- 駐車スペース
- 2台
間取り
FLOOR PLAN
1F

2F

マップ
MAP
設備・立地
POINT
| 間取り |
|
|---|---|
| 仕様・設備 | ■ZEH住宅水準の断熱性能(UA値0.6以下) |
| 交通・立地 | 業務用食品スーパー 鴨部 約230m コープ かもべ 約280m セブンイレブン 高知市鴨部1丁目店 約450m ローソン 高知鴨部三丁目店 約550m |
| その他 | ■エコキュート本体(370ℓ普通型フルオート) |
物件概要
OVERVIEW
| 所在地 | 高知市鴨部2丁目655番2ほか3筆の内、1号地 |
|---|---|
| 価格(総額) | 1,320万円 |
| 敷地面積 | 132.15㎡(39.97坪) |
| 施工面積 | 92.75㎡(28.06坪) |
| 駐車場 | 2台 |
| 小学校区 | 鴨田小学校エリア |
| 道路 | 東側約6m幅公道に接道 |
| 地目 | 宅地 |
| 容積率 | 200%(建蔽率60%) |
| 用途地域 | 第一種中高層住居専用地域 |
| 取引形態 | 売主 |
| 状態 | 更地 |
※この土地は土地売買契約後3ヶ月以内に弊社と建物の請負契約を締結することを条件に販売致します。
この期間内に建築請負契約を締結されなかった場合は土地売買契約は白紙となり、受領した手付金等の土地代金は全てお返しすることになります。
※建物価格には建物本体標準仕様工事と標準附帯工事が含まれています。
※上記に含まれていない工事や標準仕様を超える仕様、設備等を望まれる場合は別途御見積りとなります。
法第22条区域













